Etudes


Eco-lieu – Lans en Vercors

ENSA.Grenoble

  • Ce projet consiste en la création d’un lieu expérimental afin de pouvoir tester les nouvelles avancées écologiques. Il se situe à Lans en Vercors sur le plateau de la Molière.
  •  Cette architecture cherche à se fondre dans le paysage, en retranscrivant de manière symbolique les éléments organiques que ce soit par le choix d’une forme, d’un matériau…

Chai Viticole – Chignin

ENSA.Grenoble

  • Ce projet consiste en la création d’un chai viticole qui se situe à Chignin dans le département de l’Isère.
  • La création des montagnes, la rencontre entre 2 plaques tectoniques, sont à l’origine de la démarche conceptuelle de ce chai viticole.
  • Ce chai met en avant un aspect déconstruit, comme en témoigne les massifs environnants, il est composé de 2 parties, une partie enterrée, servant à la production, et une partie non enterrée, servant à l’accueil, la vente…
  • Un dialogue s’instaure entre ces 2 parties, l’une s’incline pour laisser émerger du sol la deuxième.
  • La notion de déconstruction dans la conception de ce chai viticole  est ce qui permet de concerver un lien étroit entre le chai et son environnement.

 

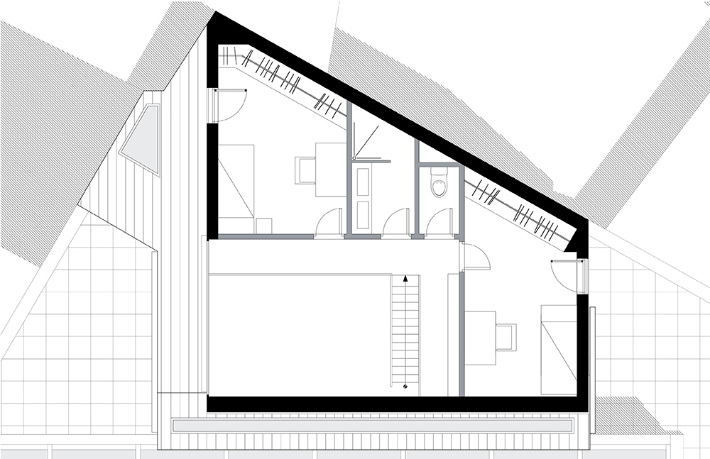
Habiter sur les toits

ENSA.Grenoble

  • Ce projet a été dirigé par une contrainte souhaitée inchangée, la faille de l’atelier représentée par une pente à 45%. Cette pente va alors générer la forme ainsi que l’agencement intérieur de l’extension.
  • Le rez-de-chaussée est composé d’un hall de transition entre extérieur et intérieur donnant sur le salon. La pièce à vivre est composée d’une cuisine ouverte sur salon, le salon bénéficie également d’une ouverture sur terrasse exposée ouest.
  • La partie est, est uniquement réservée aux parents avec dressing, salle de bain et terrasse privative. L’étage supérieur génère un vide sur salon, afin de créer une sensation de grands espaces. Une coursive distribue les 2 chambres enfants, une exposée est, l’autre ouest.
  • L’apport de lumière au sein de l’extension s’effectue sous la forme d’ouvertures en bande sur la toiture (exposée sud), de manière à bénéficier d’une lumière constante en journée pour le salon.
    Il dispose également d’une large ouverture exposée ouest. Les chambres exposées est bénéficient du même apport de lumière, seule la chambre exposée ouest dispose d’une ouverture en toiture face nord.

Futuristic Flat

IPESAA – Montpellier

  • Créer un logement de type T1 ou T2, de 4 ou 5 modules de 3x3m.Ce lieu doit offrir à leurs usagers un espace modulable pour dormir, se laver, cuisiner, manger, recevoir, sʼisoler, se détendre, ranger…

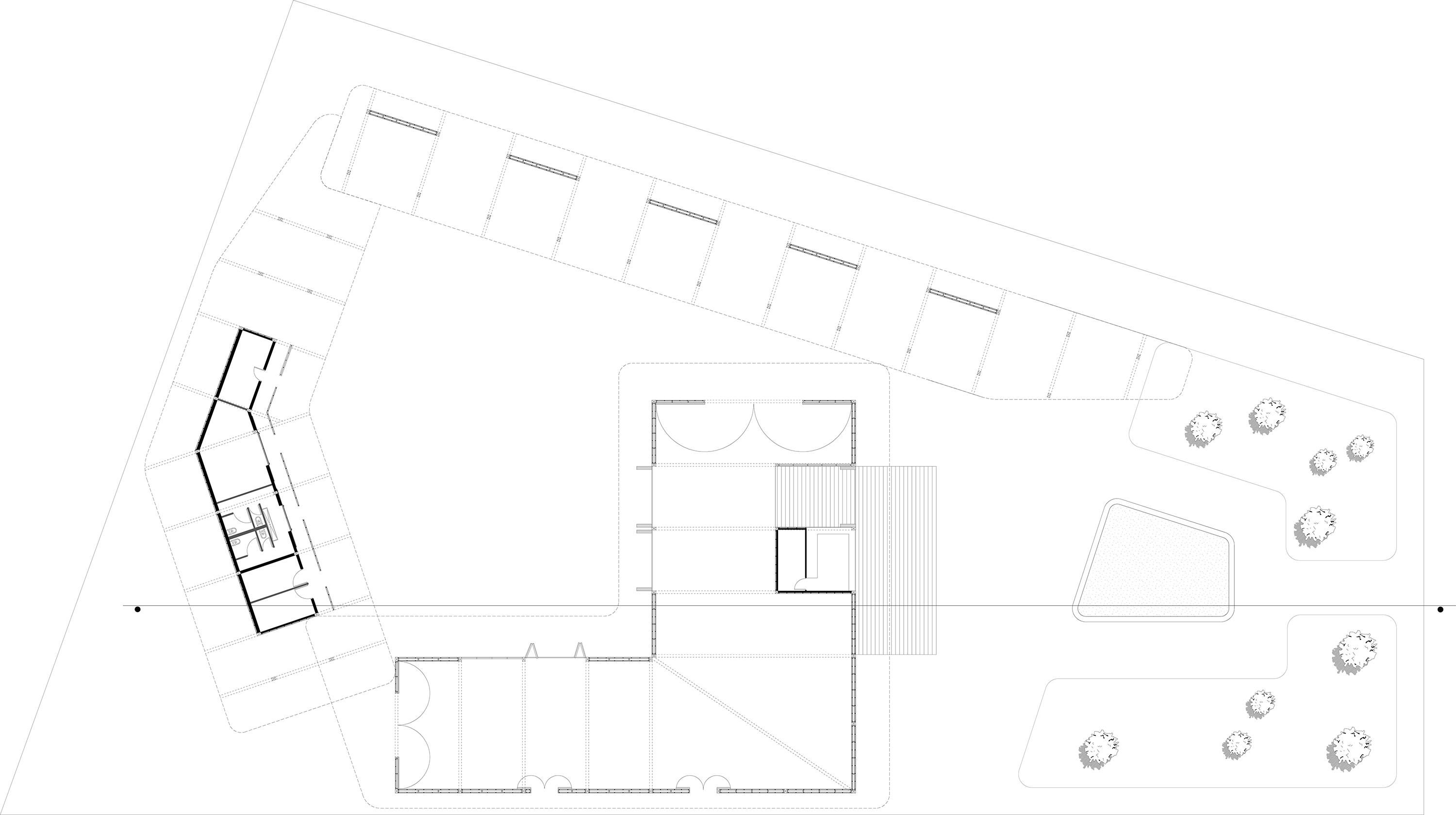
Halle de marché

ENSA.Grenoble

  • Conception d’une halle de marché sur une place ayant un fort vis-à-vis et s’ouvrant également sur un parc arboré.
  • Cette halle est composée des 3 parties:

        – Une halle couverte et fermée

        – Un bâtiment de fonction (bureau, sanitaire, poubelles,…)

        – Une halle couverte et ouverte

  • L’implantation de cette halle permet la création d’une place secondaire, comprise entre la halle et le parc. Cette place apporte une fonction secondaire à cette halle, plus propice à la flânerie.

Quartier Berriat – Grenoble

ENSA.Grenoble

  • L’approche analytique en phase 1 du projet nous a permis de définir quelles étaient les qualités d’usage présentes sur le lieu, et celles que l’on pouvait y apporter. Je me suis rendu compte que deux dialogues s’instauraient sur ce site.
    Au Nord, une organisation du Cours Berriat à l’échelle de la ville avec une forte présence de commerces, une ligne de tramway, des bâtiments, et en partie Sud une organisation à l’échelle du quartier, avec dans certains cas des maisons individuelles et un trafic quasi inexistant.
  • L’enjeu a donc été de conserver ce double dialogue, en variant l’échelle de conception côté Nord et côté Sud. Ainsi le côté Nord a pu être traité à l’échelle des grands boulevards, intégrant à la fois des logements et des commerces. La partie Sud, a pu conserver son esprit maison individuelle.
  • La question des fonctions, où de l’usage dans ce projet témoigne d’une répartition bien définie des espaces. Les commerces occupent le front du Cours Berriat et également le front de la place public afin de répondre au besoin d’alimenter cette place en équipement public ou encore bar, restaurant . 
  • Le quartier Berriat témoigne d’une hiérarchisation des espaces et d’une répartition des fonctions équitable basée sur une pensée fonctionnelle afin de répondre au mieux aux besoins du quartier.

9 Cubes & 27 Cubes

ENSA.Grenoble

  • La démarche conceptuelle de cet espace part d’un travail sur la diagonale qui devient alors l’élément directeur du projet et suscite une ouverture complète sur toute sa hauteur, divisant ainsi le volume en 2 parties, la chambre d’un côté, salon et cuisine de l’autre.
  • 27 cubes est la continuité du projet 9 cubes. La diagonale devient alors une faille et régit une nouvelle fois l’espace.